量水堰计

量程:150 300 600 1500MM
精度:0.1%FS
稳定性:0.05%FS/年
输出信号:Hz
应用场景:常用于水库、大坝、尾矿库等渗流量监测


INQUIRY PDF Format

Description

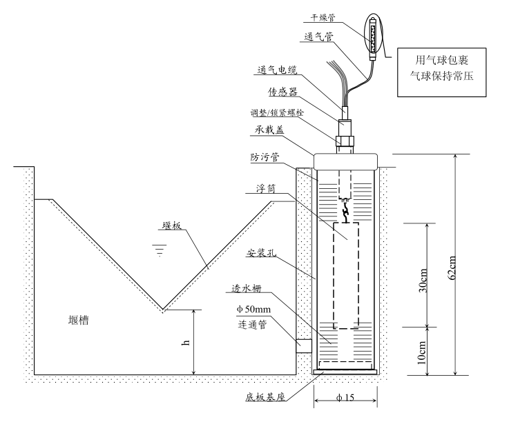
量水堰计用于精确测量非常小的水位变化,可对河流、堰槽以及钻孔里很小的水位变化进行精确测量。该系统主要包括一个悬挂有柱型浮筒的振弦式力传感器,柱型浮筒部分浸入水中,由于水面的变化改变了浮筒的浮力,即由振弦式力传感器精确测量。系统可以测出小到 0.025mm 的水位变化,仪器最大量程可达 3 米。系统安装之前,应在现场对传感器与浮筒组件进行检查,即将传感器接到读数系统上,装上浮筒后,测量传感器的零位输出。传感器体与挂钩之间的连接螺母必须松开,直到使其不再与传感器体相连。这些螺母仅仅是为运输安全而装上的。要保证传感器支撑在挂钩上,并使系统稳定(使浮筒不要摆动)。传感器的安装比较简单。如果是用于河流或量水堰,则需要设一个静止观测井(带隔栅的防污管)。静止观测井应装在水流相对平静区域内的铅垂位置,并以水位在浮筒所在位置上就位。

零位读数检查之后,小心的将组件放下进入静止井(钻孔)中,直到盖子牢固地安放在防污管的上部。在钻孔内安装时,可根据悬挂材料(如铟钢丝)的长度,将量水堰计系统放到所需监测的位置,应保证传感器浮筒部分浸入水中,传感器不可浸入水中。系统在井中(或钻孔中)安装时应注意对中,这一点很重要,因为浮筒与井壁(或防污管)的任何摩擦都会影响传感器的输出。

uploads/image/20210219/1613718186.png 

 


Successfully added!
Inquiry Now